当前位置:首页>铸造工艺

高真空(热室)压铸工艺的设计及试验

李海林 发表于2025/3/21 11:23:21 热室压铸机高真空压铸

原标题:基于热室压铸机的高真空压铸工艺设计与试验的研究

压铸件广泛应用于汽车、五金、通信等行业。提升压铸件的生产制造工艺以提高压铸件的制造品质,对压铸业十分重要。研究者们总结了提升压铸件品质的两种生产工艺法:真空截止阀法和激冷排气槽法,并阐述了其结构原理,在此基础上介绍了两种国外高真空压铸工艺:Vacuum GolveBox 法和MFT法。在普通压铸机上通过压射过程中压射冲头的位置控制抽真空过程中真空阀的开闭,避免合金液流入抽真空系统。通过在模具型腔末端设计牙型排气槽与真空排气槽相连,使液态合金经牙型排气槽的阻挡作用后停止流动,避免合金液流入抽真空系统。在模具型腔末端设计了一种主副双通道的抽真空通道,主通道的排气截面大,由真空阀控制其开闭,副通道截面小且形状为齿状,以此增加液态合金流入其中后的流动阻力,避免合金液进入抽真空系统。在实际工程应用上,为了提高压铸件的成形品质,克服压铸件气孔和缩松缺陷,提高压铸件的力学性能,企业普遍采用高真空压铸工艺,但存在的问题是模具型腔的密封性欠佳,同时伴有少量合金液被抽入抽真空系统,导致生产的稳定性不高,后续维护成本高。

本研究以MFT法和Vacuum GolveBox法为基础,在普通热室压铸机上实施高真空压铸。通过对热室压铸模具密封装置、抽真空口通气阻料装置及抽真空压铸工艺流程进行设计,确保密封箱与模具型腔内的真空度,从而实现稳定的高真空压铸工艺。结合试验和实际生产,分析该工艺方法对铸件断面特征及力学性能的影响,为制备高质量压铸件提供参考。

图文结果

实现高真空压铸工艺的关键技术有以下3点:一是模具密封;二是模具中抽真空口机构设置;三是抽真空流程设计。对于模具密封技术,目前国内普遍采用的方法是在模具上围绕模具型腔进行密封机构设计,常用的方法其关键是在模具分型面上、模具推出机构及模具与压铸机射压机构等部位设计密封圈进行密封,避免空气进入模具型腔。这种方法的优点是无需单独设计和制造密封装备,其缺点是增加了模具的生产制造难度,缩短了模具的使用寿命。对于抽真空口机构设计,目前主要的方法有两种:第1种是由基于杠杆原理的抽真空口控制装置,该装置是在模具抽真空口处设计由连杆连接的主从动活塞,抽真空时,型腔内的气体通过模具抽真口抽离,压铸时,当合金液流经主动活塞时,主动活塞通过连杆机构带动从动活塞闭合抽真空口,从而避免液态合金进入抽真空系统。这种机构的优点在于结构相对简单、制作方便,缺点是生产时不断有少量合金累积在主动活塞与活塞孔之间,造成活塞动作的不灵敏,导致合金液溢入抽真空系统,从而造成生产的中断。第2种是在模具抽真空处设置由液压缸带动的挡板开闭装置,抽真空时,液压缸带动挡板打开抽真空口,当模具型腔真空度达到要求时,液压缸带动挡板关闭真空口。这种结构能极大地简化模具结构,缺点是由于各种原因导致的液压缸运动不及时,使液态合金容易进入抽真空系统,从而造成生产中断。抽真空的流程一般是在合模状态下,先对模具型腔抽真空,当真空度达到要求后,停止抽真空,然后再启动压射流程,将熔融合金压入模具型腔中。其优点是在压铸过程中,真空系统停止了对模具型腔的抽真空,其能有效避免合金液进入真空系统,其缺点是熔融合金在填充过程中,可能会混入少量气体,从而影响铸件成形品质。

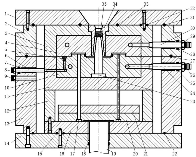
图1为设计优化后的热室高真空压铸工艺结构图。其中,将模具整体密封于矩形密封箱内,密封箱主体结构由定模密封箱底板1,定模密封箱套板2,动模密封箱底板14,动模密封箱套板13,圆环密封圈15、32、33,圆长条密封圈22、27、31等零件组成。其密封方案如下:将热室压铸模具定模板3通过螺钉固定在定模密封箱底板1上,在其接触面上设置圆环密封圈32、33;将动模底板16固定在动模密封箱底板14上,在其接触面上设置圆环密封圈15;在动模密封箱底板14底端开设顶出孔,并在孔内设置矩形密封圈18,压铸机推杆19经顶出孔后再推动模具的推出机构将压铸件推出模具型腔外;在定模密封箱套板2和动模密封箱套板13的接触面上设置圆长条密封圈27;在定模密封箱底板1与定模密封箱套板的接触面上设置圆长条密封圈31;在动模密封箱底板14与动模密封箱套板13的接触面设置圆长条密封圈22,通过上述位置的密封设计,除了模具与压铸机喷嘴接触的进料口外,基本实现了对模具其余部分的整体密封。

图1 热室高真空压铸工艺结构图
1.定模密封箱底板 2.定模密封箱套板 3.定模板 4.定模镶件 5.微孔塞 6.型腔抽真空管 7、18、25、28.矩形密封圈 8、9.抽真空接口 10.动模镶件 11.动模板 12.支撑板 13.动模密封箱套板 14.动模密封箱底板 15、32、33.圆环密封圈 16.动模底板 17.推杆 19.压铸机推杆 20.推板 21.推板固定板 22、27、31.圆长条密封圈 23.分流锥 24、30.接水管 26、29.冷却水接口 34.浇口套 35.发泡塑料密封塞

模具抽真空口是与模外抽真空系统的连接通道,其作用是对模具型腔抽真空,同时避免压铸合金液被吸入抽真空系统中,对高真空压铸生产的稳定性起决定性作用。为了避免在模具中设计复杂的抽真空口开启和闭合装置,本工艺抽真空口的设计方案见图1。在模具抽真空口前设置了具有通气阻料功能的微孔塞5,其作用是抽真空时能让模具型腔中的气孔快速通入其中被抽离,压铸时能有效阻挡合金液进入其中,避免合金液进入抽真空系统,该部件由酚醛树脂加热至熔融状态后与细砂均匀混合后压制而成,具有耐高温、抗变形、透气性好的优异性能。

在生产实践中,为了便于安装,将微孔塞制成梯形圆台状。在动模镶件10靠近产品型腔末端溢料槽位置的后面设计一个梯形圆孔,如果是大型的压铸件可在型腔多个位置设置多个梯形圆孔,将微孔塞放置其中,在圆孔的底部开设抽真连接通道,再通过型腔抽真空管6与动模密封箱套板13上连接抽真空系统的抽真空口8相连,同时在动模密封箱套板13上开设了专用于对密封箱内部抽真空接口9。抽真空时,模具型腔内的气体通过抽真空接口8抽离,密封箱内的气孔通过抽真空接口9抽离。为防止外围气体进入密封箱内,在型腔抽真空管6上设置矩形密封圈7,在用于控制模具温度的接水管24、30上设置密封圈25、28。这种抽真空口设计的特点是通过对模具型腔及模具外围同步抽真空,能有效地提升模具型腔的高真空度,同时进一步简化模具结构设计与生产制造难度。

由于方案是在普通热室压铸机上实施高真空压铸工艺,因此,在进行高真空压铸生产前,需将抽真空系统与压铸机控制系统进行系统集成。抽真空系统硬件结构主要由电气控制系统、电机、真空泵、真空罐、真空阀、真空度表、过滤器、传感器、真空管道等零件组成。控制部分由PLC控制变频器对三相异步电机的启停及转速进行控制,从而控制真空泵实施抽真空工艺。

图2为系统集成后的压铸工艺流程,分普通压铸模式和高真空压铸模式。在普通压铸模式下,按照压铸机现有压铸流程进行压铸;在高真空压铸模式下,在压铸机开合模机构的作用下,使密封箱及模具合模,当传感器检测到合模完成信号后,传输信息至PLC控制系统,当PLC控制器接收完信息后,启动电机运转并通过带传动机构带动抽真空泵对模具密封箱及模具型腔抽真空。当真空度达到要求后,由PLC控制系统的数据通信功能与压铸机控制系统进行信息交互,从而启动压铸机的压射流程。合金液在压射机构的作用下,经模具直浇道、横浇道、内浇口后注入模具型腔内,保压结束后通过真空阀停止抽真空,待压铸件冷却后,通过在压铸机开合模机构的作用下,使模具密封箱及模具处于开模状态。通过压铸机推杆经模具推出机构将压铸件推出模外,再通过压铸机使模具密封箱及模具进行合模,至此完成一个生产周期。

图2 抽真空工艺过程

为了检测上述高真空压铸工艺方案的实际效果,设计一截面形状为梯形的S型压铸件,以较好地测试合金液在不同压铸环境下的流程,同时方便后续的质量检测。图3为S型压铸件及S型铸件模具与真空箱。其中,梯形的S型压铸件截面尺寸为5.5 mm×5 mm×3.5 mm,见图3a。此外,为制取S型压铸件试样,设计并制造S型铸件的热室压铸模具及其密封真空箱,定制了发泡塑料密封塞和微孔塞,将发泡塑料密封塞放置在模具的直浇道内,将微孔塞放置在模具抽真空口处的梯形圆锥孔内,实际获得S型铸件的配套模具与密封箱见图3b。

为制得梯形S型压铸件试样以分析设计改进后的高真空压铸工艺对铸件断面特征及力学性能的影响,选择ZA8锌合金进行压铸。该合金具有良好的流动性和尺寸稳定性,抗变形能力高,常用于压铸尺寸小、精度和强度要求很高的铸件。ZA8锌合金化学成分见表1,物理性能见表2。

                      (a)S型压铸件                         (b)S型铸件模具与真空箱
图3 S型压铸件及S型铸件模具与真空箱

表1 ZA8锌合金成分组成(%)

表2 ZA8锌合金的物理性能

将S型铸件模具安装在密封箱内,再将密封箱及模具安装在热室压铸机的工作台上,将抽真空系统与模具型腔抽真空口及密封箱抽真空口相连。为了使熔融合金冷却凝固,需在密封箱上冷却水接口为模具成形零件外接外围冷却循环系统。为了便于合金液在型腔内的快速填充,先通过柴油喷枪将模具温度预热至200 ℃左右,同步在压铸机上进行压铸工艺参数的设置。一般而言,对于壁厚大于5 mm的锌合金压铸件,压射比压设置在50~60 MPa之间,合金液通过内浇口的填充速度设置为20~30 m/s之间,填充时间设置在0.048~0.072 s之间,浇注温度设置在420~440 ℃之间。根据S型压铸件的结构特点,本试验设定的工艺参数见表3。

采用以上相同的工艺参数分别对S型压铸件进行普通压铸试验和高真空压铸试验。普通压铸时,在模具处于开模状态时,将微孔塞放置在动模镶件抽真空口附件的梯形圆孔内,在0.1 MPa下进行常规压铸生产。高真空压铸时,当模具处于开模状态时,将发泡塑料密封塞从模具分型面装入模具直浇道内,当传感器检测合模完成信号后,启动抽真空系统对模具型腔抽真空,当传感器检测模具型腔内压力小于2 kPa时,启动压铸。合金液在压铸机压射机构的作用下,经模具浇注系统快速填充模具型腔,经保压、冷却凝固后开模,在模具推出机构的作用下将S型铸件推出模外。为了分析不同压铸环境下铸件的力学性能,分别对普通压铸工艺及高真空压铸工艺获得的S型铸件取不同的部位作为拉伸试样,见图3a位置1~4处。

为进一步分析设计优化后的高真空压铸工艺对实际工程应用的适应性,采用上述相同的工艺过程,分别制取普通压铸工艺下和高真空压铸工艺下的长条形压铸件。企业试制生产的锌合金长条形压铸件外形尺寸为250 mm×70 mm×60m m,壁厚为3.5 mm,试制产品配套的长条形铸件模具与密封箱见图4。

表3 S型压铸件压铸工艺参数表

                                (a)定模部分          (b)动模部分
图4 长条形铸件模具与真空箱

图5为不同压铸条件下所获得的S型铸件。可以看出,在普通压铸工艺下,由于模具型腔内气体未能及时排出型腔外,导致合金液在充填过程中,受到来自型腔内气体的反向阻力,使液态合金未能填充满S型铸件的末端,锯开产品横断面发现,产品断面特征中残留少量气孔缺陷。在设计优化后的高真空压铸工艺下,由于模具外围及模具型腔内的气体在压铸前被抽离至高真空,因此,液态合金在填充过程所受阻力小,能顺利填充整个S型铸件,锯开产品横截面未发现有气孔及缩松缺陷,产品截面特征的致密性较好。表4为不同压铸环境下所获得的S型铸件在拉伸试验后,由WE-100液压式万能测试机测得的抗拉强度及WILSON-UH4250型万能硬度计测得的硬度数据。

为进一步分析设计优化后的高真空压铸工艺对实际工程应用的适应性,图6为压铸企业针对不同压铸环境实际试生产的长条形锌合金压铸件。采用普通压铸工艺时,由于产品外形尺寸较大,壁厚较薄,合金液在填充过程中,模具型腔内气体未能在充填时间内排出模外,导致合金液受到较大的反向填充阻力,使试制产品左下端出现填充不足的缺陷。采用高真空压铸工艺后,抽真空系统在压铸前先对模具型腔及密封箱抽真空,液态合金在高真空状态下填充模具型腔时,充填过程反向阻力小,试制产品能顺利的充填完整,见图6b。可见,在普通热室压铸机上通过设计优化实现的高真空压铸工艺能大幅提高压铸件的成形品质。

  

                     (a)普通压铸             (b)高真空压铸
图5 不同压铸环境下压铸件

表4 不同压铸环境下S型铸件力学性能

(a)普通压铸

(b)高真空压铸
图6 长条形压铸件

结论

(1)针对普通热室压铸机,完成了对模具密封装置、抽真空口通气阻料装置及抽真空压铸工艺流程的设计优化,简化了压铸模具内部复杂的密封结构及抽真空口结构,降低了压铸模具生产制造难度,保证了密封箱与模具型腔内的真空度,实现了高真空压铸工艺。

(2)通过试制梯形S型及长条形ZA8锌合金铸件,相较于普通压铸工艺,在高真空压铸工艺下,合金熔体填充性能更好,铸件断面致密性更佳,且无气孔和缩松缺陷,抗拉强度高达396.4 MPa,硬度(HBS)高达98.5。

(3)在普通热室压铸机上采用本高真空压铸工艺方案,无需专用设备资金投入,生产成本低,压铸件质量提升明显,在压铸企业具有很好的推广价值。

《基于热室压铸机的高真空压铸工艺设计及试验研究》
李海林 张呈杰
广州城建职业学院机电工程学院

本文来自:《特种铸造及有色合金》杂志,《压铸周刊》战略合作伙伴

回页顶部